top of page

North Queensland's Largest House Relocators

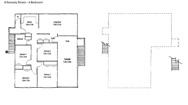
Property Description
Contact Agent
Jo Veneman
07 4778 4019
Property Details
Property Type
Family Home
Bedrooms
4
Bathrooms
1
Size
2
Floors
Year Built
Property Location
9 Kenealy St, Aitkenvale QLD 4814, Australia
bottom of page





